為什么要做企業展示廳?
企業展示廳是企業展示自身形象、產品、文化和價值觀的重要場所,通過精心設計裝修展廳能提升品牌形象和美譽度,增強員工歸屬感和認同感,提高客戶滿意度,提高企業競爭力,為企業發展提供有力支持。企業展示廳作為一個獨特的展示空間,能夠吸引大量的終端客戶、企業同行、政府部門、專家學者、新聞記者的參觀和體驗,對于提高企業的知名度非常有利。
展廳設計的基本要素需要注意:
1、是否適合企業展廳設計方案:不同企業做的產品不同,每一家都有自己的特色風格,所以設計師在做策劃方案時要適合企業個性的特色方案,大到展廳的骨架,小到展示品陳列布局,都要有詳細的規劃,才能打造出理想效果的展廳設計。
2、LOGO標志:企業LOGO標志在展廳設計中要達到醒目,運用巧妙的設計方法企業標志的作用,加深參觀者對企業品牌的印象。
3、突出展示重點:企業展廳設計中應該有中心重點,突出重點能達到更理想的展示效果。可以運用位置布局、燈光聚焦或者襯托的方式突出整個展廳的重點所在。展廳設計的目的就是將企業信息更好的傳遞給客戶,所以在設計中上除了外觀,展廳不要過于復雜,盡量要設計的簡潔易理解,才能達到展示的信息傳達目的。
4、統一性:整個展示廳是由多個環節組成的,圖片、燈光、產品、骨架、色彩等,雖然使用元素較多,但是無論怎么樣都要保持展廳設計的整體和諧統一性,不然整體看起來會比較奇怪,會達不到理想的展廳設計。整體根據主題設計會有很好的和諧性。
展廳設計需考慮觀眾定位、主題與故事敘述、空間規劃、視覺設計、材料與可持續性、技術整合、安全與維護以及預算與執行等方面,要求設計師具備創意、美學素養和多方面能力,在創意和實用性、美學和技術、預算和效果之間找到平衡點,為觀眾提供一個既美觀又富有教育意義的空間。
上海信可威展覽設計公司專業從事展會展臺設計、展會策劃、展臺搭建的展覽服務,同時提供展示設計,承接大小型展會布展,作為展覽搭建公司致力為客戶提供前期策劃、設計創意、現場搭建和維護、全國巡展等,致力于全球各個國家各個城市的一站式會展設計搭建服務。如果您需要做展示廳設計裝修,歡迎致電信可威展覽:400-880-3676

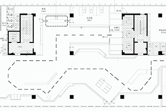
展廳設計公司在做企業展廳的時,會根據現有空間狀態針對性的做出規劃設計,展廳設計中較為重要的一部分-合理的參觀路線,只有規劃好參觀路線,引導參觀展廳的人流走向,才能把展廳設計的合理,以下三種是比較常見常用的參觀路線。

企業做展廳的目的是為了展示企業品牌形象和增加企業營銷,對企業本身和對外接待都有極大的價值和意義,從這兩點不難看出,企業做展廳也有一定的商業性,那么做商業展廳設計有哪些特性?企業了解這些特性能更好的了解企業展廳的重要性。

企業展廳設計是在一塊空間上進行規劃和設計,把企業的產品和理念及未來發展都規劃到這塊空間里面,那么如何對這塊空間進行設計和分區,這些都需要專業的展廳設計公司來設計,那么企業展廳設計如何分區布局?本文就3點方法介紹企業展廳布局設計方法。使企業展廳更加的合理規范又吸引人!

很多企業領導人不明白,覺得別的上市公司有展廳,我們作為大型的公司也需要展廳,其實存在即合理,為什么會做展廳,一個好的展廳設計是否對企業發展有什么重要作用,本文就展廳對內對外的作用簡單的介紹下?

眾所周知,企業做展廳不僅僅是企業形象展示,也是品牌宣傳效果,而專業的展廳設計公司設計展廳是根據企業展廳的具體位置,空間形狀、大小等客觀因素,合理的空間布局,讓有限的空間產生完美的理想效果。

展廳的整體設計風格要與企業的品牌形象和主題相契合,體現出現代、科技、創新、品質的特點。色彩搭配要簡潔明快,以企業的品牌色彩為主色調,搭配一些輔助色彩,營造出舒適、明亮、富有活力的展示空間。

怎樣把企業的展廳做到吸引人,這才是最重要的。展廳設計公司有很多家,可是對于企業來說,到底什么樣的展廳設計公司才是最佳的選擇呢?展廳裝修公司的存在就是為了為顧客設計裝飾展廳,下面就簡單的介紹展廳設計裝修公如何做到吸引顧客展廳的方法。

VR虛擬現實是近年來熱門技術,疫情的蔓延,它又重新又出現在觀眾面前,原理是利用計算機技術模擬產生一個三維空間的虛擬世界,提供視覺、聽覺、觸覺等感官的模擬,讓觀眾可以實時地、沒有限制地觀察三度空間內的事物。而vr技術在各個行業的應用也越來越智能化,尤其是在展廳上的應用得到了最大的發揮。

目前有不少企業對于展廳設計都比較關注,眾所周知,一個展廳設計規劃對于產品營銷有很好的效果,尤其是在高科技發展的今天,互聯網多媒體技術得到了廣泛的應用,展廳的出現得到了大家的重視,信可威展覽在這里提醒大家,一個展廳的好壞除了技術的選擇,還有設計上的規劃。